Núm. 45 (2020)
Artículos

ESTRATEGIAS DE CO-RESIDENCIA EN EL ÁREA PERICENTRAL DE SANTIAGO DE CHILE

Juan Pablo Urrutia Muñoz
Universidad de Chile
Biografía
Michelle Elizabeth Cáceres Ledesma
Universidad de Chile
Biografía

Publicado 27-07-2020

Palabras clave

  • autoconstrucción,
  • co-residencia,
  • progresividad,
  • tipologías,
  • vivienda

Cómo citar

Urrutia Muñoz, J. P., & Cáceres Ledesma, M. E. (2020). ESTRATEGIAS DE CO-RESIDENCIA EN EL ÁREA PERICENTRAL DE SANTIAGO DE CHILE. Revista 180, (45). https://doi.org/10.32995/rev180.Num-45.(2020).art-697

Resumen

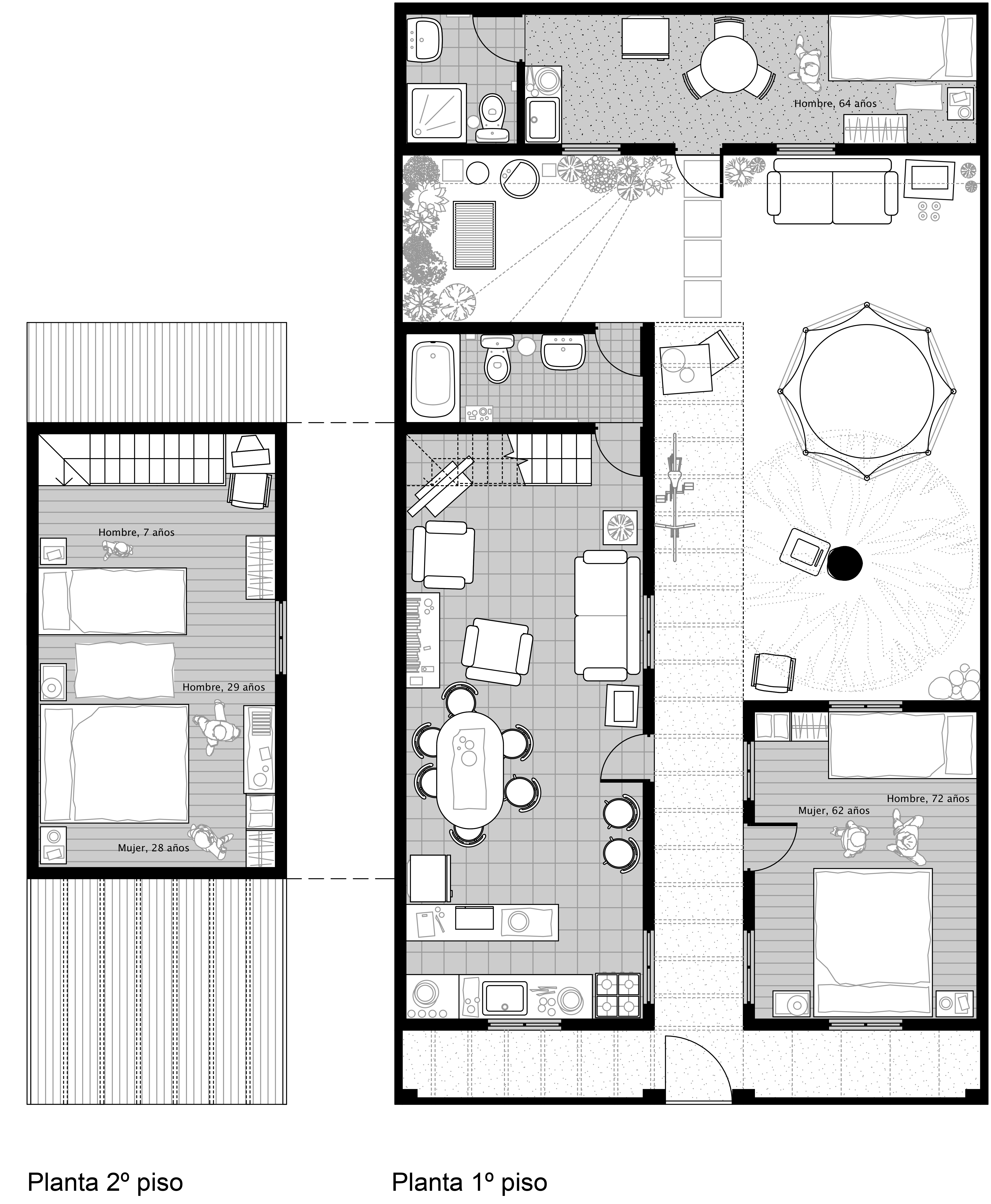
El aumento constante del allegamiento en zonas centrales de la ciudad de Santiago no es más que el reflejo de una estrategia utilizada por los habitantes de sectores vulnerables para mantenerse en sectores bien localizados. Ante una política habitacional restrictiva que expulsa a estos habitantes a la periferia y una vivienda de mercado a precios inasequibles, la cohabitación en familias extensas aparece como una alternativa que les permite mantener sus redes, acceso a la ciudad consolidada y fuentes laborales. Esta cohabitación de familias extensas o co-residencia, las induce a generar nuevas tipologías habitacionales que permiten sostener este estilo de vida. Para ello modifican las viviendas en que viven de acuerdo con sus intereses, necesidades y capacidad económica. Para comprender estas tipologías se analizaron 100 casos de familias extensas en situación de allegamiento en el pericentro de Santiago. Esto permitió reconocer y categorizar 11 tipologías de ocupación del sitio y 12 de organización de la vivienda. El estudio revela una amplia variedad de estrategias residenciales que interpelan al modelo de producción de vivienda para familias mononucleares basado en conceptos y elementos predefinidos de la arquitectura, los cuales quedan en cuestión por no reconocer la amplia diversidad de modos de habitar.