Núm. 44 (2019)
Artículos

La AEG y la instalación de un imaginario modernizador en Chile

Rodrigo Vera
Universidad de Chile
Biografía
Ronald Harris
Universidad de Chile
Biografía
Patricio Bascuñán
Universidad Diego Portales
Biografía

Publicado 19-12-2019

Palabras clave

  • AEG,
  • arquitectura moderna,
  • Chile,
  • diseño,
  • Peter Behrens

Cómo citar

Vera, R., Harris, R., & Bascuñán, P. (2019). La AEG y la instalación de un imaginario modernizador en Chile. Revista 180, (44). https://doi.org/10.32995/rev180.Num-44.(2019).art-564

Resumen

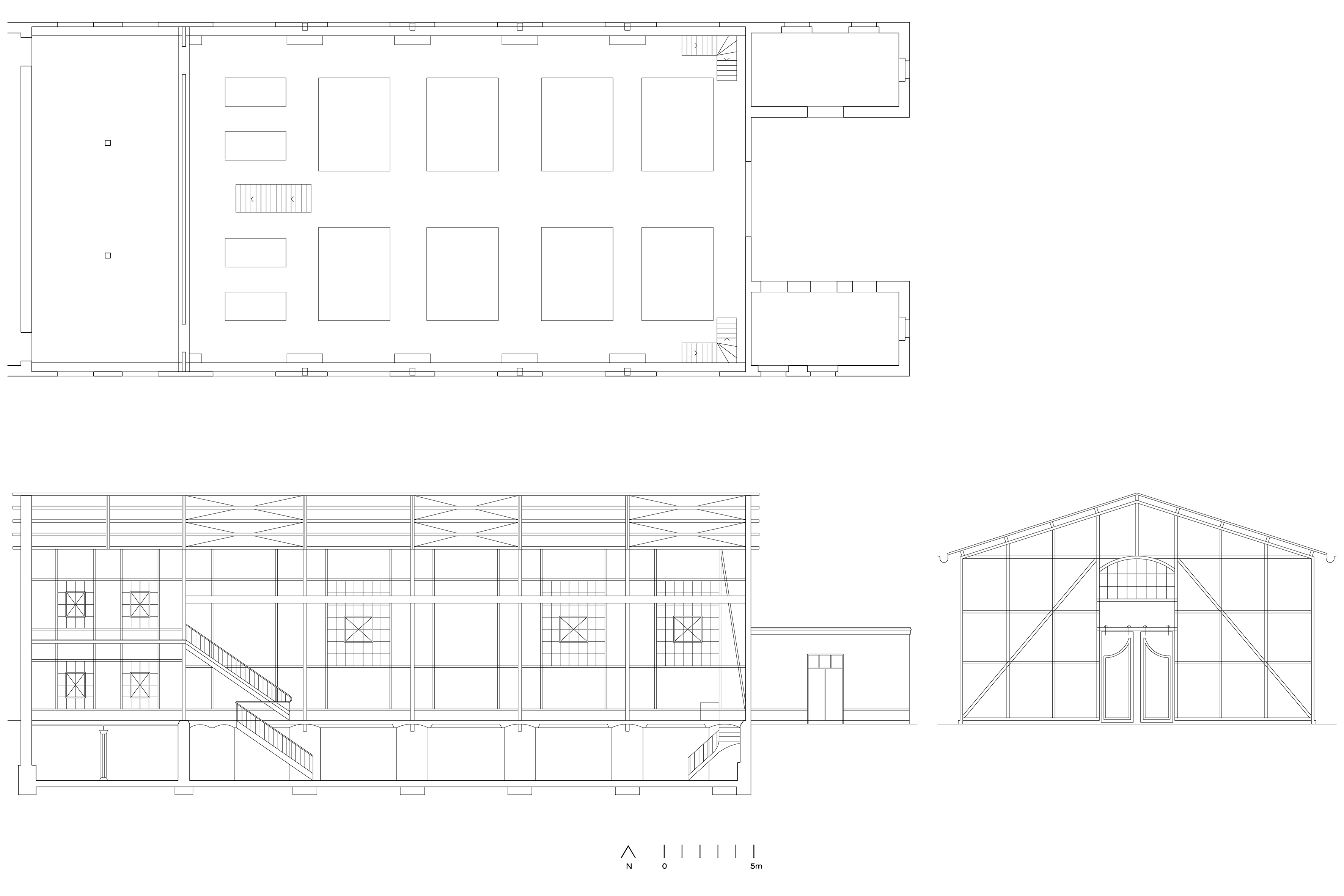
El artículo propone una visión alternativa del ingreso de la proyectualidad moderna relacionada con la presencia de la firma alemana AEG (Allgemeine Elektricitäts-Gesellschaft) y el ineludible vínculo de esta empresa con la figura del arquitecto y diseñador alemán Peter Behrens, uno de los principales impulsores de la vanguardia moderna, a partir de tres de estudio: gráfica, edificios y alcances de una visión técnica y modernizadora.

La instalación de esta perspectiva es posible de advertirla en Chile, donde la firma AEG se extendió durante las primeras décadas del siglo XX en territorio nacional, ampliando un proceso modernizador que hoy se puede verificar en un examen conjunto de estas manifestaciones.

La metodología utilizada se basa en revisión y discusión bibliográfica, además de análisis de contenido textual y visual de documentación relativa a la AEG recogida en el Historisches Archiv del Deutsches Technikmuseum, Berlín. Respecto de la arquitectura, se contemplaron registros en terreno de obras arquitectónicas tanto en Santiago como Berlín, las que fueron comparadas en su materialidad y estructura.

Las conclusiones más relevantes apuntan a considerar la existencia de una visión modernizadora instalada en Chile a partir del desarrollo de los casos de estudio, relevando la importancia que la bibliografía especializada le ha otorgado a Peter Behrens en propiciar un sentido de proyectualidad moderna.

También se concluye que si bien esta instalación fue circunscrita a un número limitado de destinatarios, tuvo una dimensión amplia si se considera que implicó una perspectiva moderna que puede ser ponderada desde la cultura material y visual de determinado momento en la historia de Chile, en que la producción industrial era una aspiración que podía verse reflejada en estas imágenes y edificios.